, , ,,, , Skip to content

POOLSIDE PARADISE

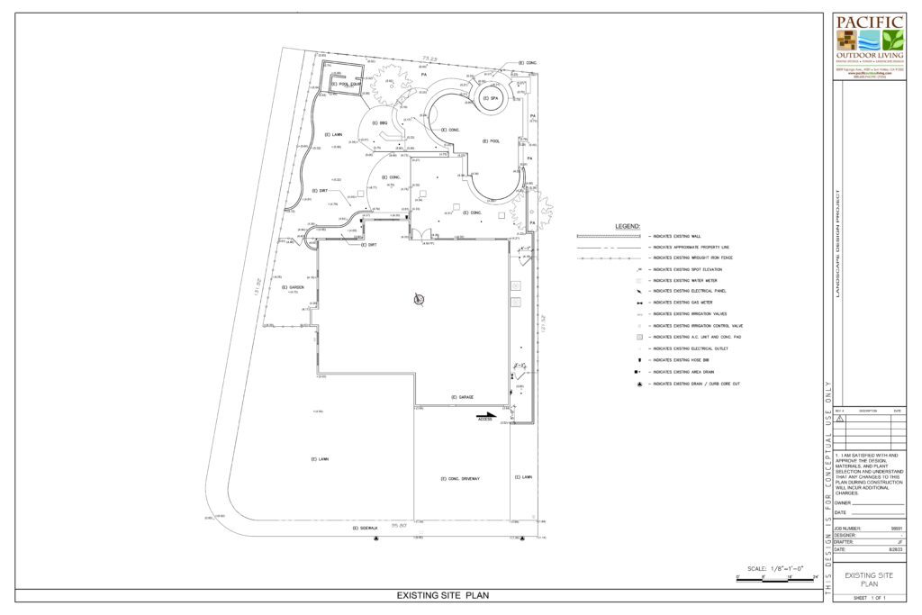
Existing site plan showing current backyard layout for landscape design project

BASE PLAN

This base plan outlines an existing property with a central residence, attached garage, and a mix of concrete, lawn, and dirt areas. Notable existing features include a pool, spa, BBQ area, and curved walkways throughout the backyard. Utility placements such as irrigation valves, hose bibs, and electrical outlets are also marked. The layout provides a clear reference of existing conditions, forming the foundation for future design improvements.

Hand-drawn landscape design sketch showing freeform pool, patio, and seating layout by Pacific Outdoor Living

DESIGN PROPOSALS

This sketch outlines a proposed landscape upgrade featuring a remodeled pool and spa with new tile, coping, and plaster finish. The plan incorporates new hardscape elements including a built-in BBQ and pizza oven with seating, two pergolas, and upgraded step treads. Additional features include new lawn areas, a water feature, defined pathways, and thoughtfully designed planting zones.

Conceptual landscape design plan with freeform pool, outdoor kitchen, and patio created by Pacific Outdoor Living

CONCEPTUAL PLAN

This conceptual landscape design features a modern outdoor space with a remodeled pool, updated decking, step treads, and coping. It includes a built-in BBQ island, shaded pergola, and hardscape elements like pavers, decomposed granite, and concrete steps. Artificial turf, layered planting beds, and drought-tolerant plants add low-maintenance greenery. Integrated lighting enhances both ambiance and safety.

BEFORE & AFTER

Completed backyard with pool and outdoor kitchen designed and built by Pacific Outdoor Living
Before After
Chat support avatar

Hi there, have a question? Text us here.

Chat support avatar

We want to help. Please submit your question?

We want to help make your outdoor dreams a reality. As the #1 Landscape Design Company in California, Pacific Outdoor Living has helped thousands of homeowners.

Enter your question below and someone will get back to you shortly.