, , ,,, , Skip to content

CALM & CONTEMPORARY

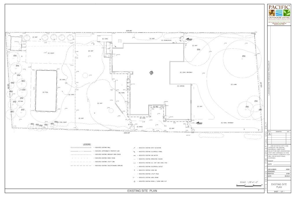
Existing site plan showing current property layout for landscape design project

BASE PLAN

The base plan detailed the home’s layout, a large open backyard, existing pool, and sports court. Much of the surrounding space was filled with dirt and minimal landscaping, with a few scattered trees along the edges. This provided the design team with a clear foundation to reimagine the space while working around key existing features.

Hand-drawn landscape design sketch showing pool, patio, and seating area layout by Pacific Outdoor Living

DESIGN PROPOSALS

The initial sketches laid out a new vision for the yard that blended natural textures with modern hardscape and open play areas. Concepts included reworking the pool with a new Baja shelf, adding trex decking, and designing winding pathways through artificial turf zones. Native plantings were added around the perimeter to soften the space and enhance flow. These early ideas helped shape a design that balanced structure and functionality across the expansive yard.

Conceptual landscape design plan with pool, pergola, and patio created by Pacific Outdoor Living

CONCEPTUAL PLAN

The conceptual plan finalized the layout of the redesigned pool with a Baja shelf, new trex decking, firepit seating area, and paver walkways. Lighting placements were added to highlight key features and improve nighttime usability. The design also included material samples for paver steps, gravel, turf, and other finishes.

BEFORE & AFTER

Wide view of contemporary backyard pool, pergola lounge, paver deck, fencing, and surrounding greenery creating a cohesive California outdoor living space.
Before After

PROJECT VIDEO

Chat support avatar

Hi there, have a question? Text us here.

Chat support avatar

We want to help. Please submit your question?

We want to help make your outdoor dreams a reality. As the #1 Landscape Design Company in California, Pacific Outdoor Living has helped thousands of homeowners.

Enter your question below and someone will get back to you shortly.