PATIO PARADISE
BASE PLAN
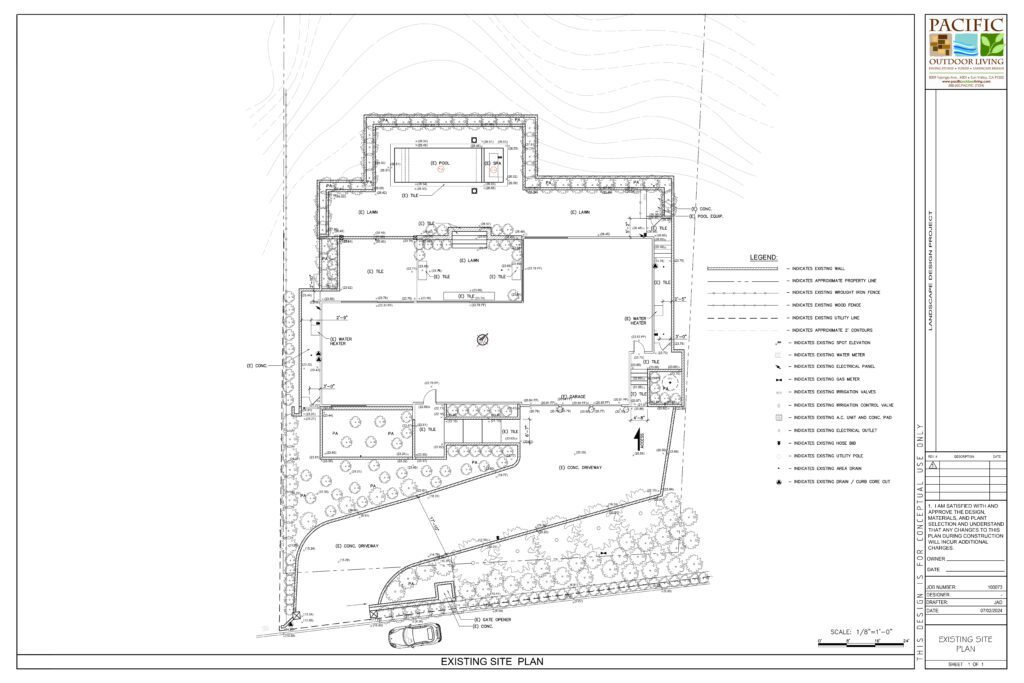
This base plan shows an existing property with a central residence, attached garage, and surrounding lawn and tile areas. A pool and spa are located at the rear of the lot, with adjacent pool equipment. The site includes multiple tile walkways, planter areas, and existing utilities such as a water heater, gas meter, and electrical panel. The driveway curves from the front gate to the garage, with mature trees and vegetation bordering the property. Spot elevations and utility placements are marked throughout to inform future landscape planning.
BASE PLAN
This base plan shows an existing property with a central residence, attached garage, and surrounding lawn and tile areas. A pool and spa are located at the rear of the lot, with adjacent pool equipment. The site includes multiple tile walkways, planter areas, and existing utilities such as a water heater, gas meter, and electrical panel. The driveway curves from the front gate to the garage, with mature trees and vegetation bordering the property. Spot elevations and utility placements are marked throughout to inform future landscape planning.
DESIGN PROPOSALS
The sketch plan outlines a range of proposed improvements, including the addition of a fountain, built-in BBQ island, and an outdoor bathroom/changing room. Two pergolas are planned to provide shaded seating areas. The design also includes a custom fountain feature for the front yard and thoughtful considerations for preserving or replacing existing mature plantings throughout the property.
CONCEPTUAL PLAN
This conceptual landscape design features a modern outdoor space anchored by a central pool, a built-in BBQ island, and an overhead pergola. Hardscape materials include sand finish concrete pavers, beach pebble inlays, and tile patios to create clean lines and texture throughout. The front yard includes a formal fountain surrounded by gravel, accent boulders, and layered planting beds. The plant palette emphasizes drought-tolerant, low-maintenance species like blue glow agave, Mexican snowball, rosemary, and lavender. Lighting is strategically placed to enhance safety and highlight key features across the property.
CONCEPTUAL PLAN
This conceptual landscape design features a modern outdoor space anchored by a central pool, a built-in BBQ island, and an overhead pergola. Hardscape materials include sand finish concrete pavers, beach pebble inlays, and tile patios to create clean lines and texture throughout. The front yard includes a formal fountain surrounded by gravel, accent boulders, and layered planting beds. The plant palette emphasizes drought-tolerant, low-maintenance species like blue glow agave, Mexican snowball, rosemary, and lavender. Lighting is strategically placed to enhance safety and highlight key features across the property.
BEFORE & AFTER

BEFORE & AFTER






















