CONTEMPORARY COURTYARD
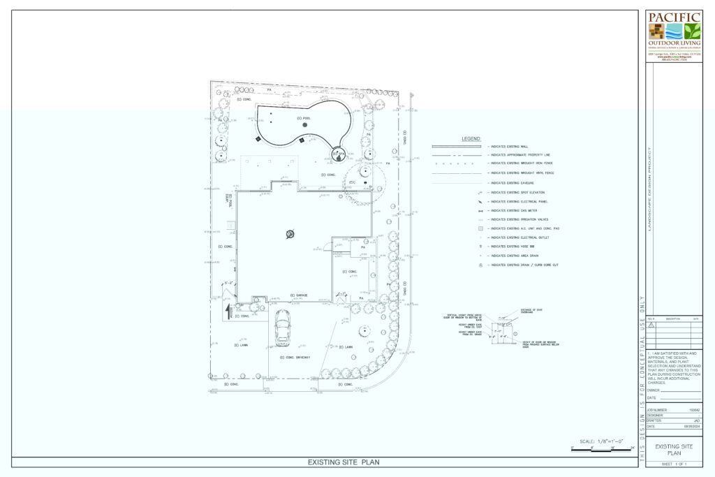
BASE PLAN
This base plan illustrates an existing property featuring a central driveway with lawn areas along the front and side yards. A freeform pool and spa are located in the rear yard, accompanied by pool equipment. The site includes multiple concrete walkways and pads surrounding the residence, as well as defined planter areas and mature perimeter vegetation that frame the property. Existing utilities—including the electrical panel, gas meter, water heater, and hose bibs—are identified for reference. Spot elevations, drainage outlets, and other utility placements are also noted throughout to support future design and construction planning.
BASE PLAN
This base plan illustrates an existing property featuring a central driveway with lawn areas along the front and side yards. A freeform pool and spa are located in the rear yard, accompanied by pool equipment. The site includes multiple concrete walkways and pads surrounding the residence, as well as defined planter areas and mature perimeter vegetation that frame the property. Existing utilities—including the electrical panel, gas meter, water heater, and hose bibs—are identified for reference. Spot elevations, drainage outlets, and other utility placements are also noted throughout to support future design and construction planning.
DESIGN PROPOSALS
The sketch plan presents a series of proposed enhancements to the property, including expanded planters, upgraded paving, and a new landscape layout designed for improved flow and aesthetics. A pergola is introduced to create a shaded gathering space, complemented by an outdoor seating and dining area. The design incorporates upgraded plantings with layered landscaping for visual interest, while preserving select mature trees along the property edges. Additional features include a relocated fountain, new lighting elements, and enhanced pathways throughout the yard. Thoughtful placement of utilities and drainage ensures the upgrades integrate seamlessly into the existing site.
CONCEPTUAL PLAN
This conceptual hardscape design showcases a contemporary outdoor living space centered around the existing pool and spa, with upgraded paving and integrated seating areas. The layout introduces a built-in BBQ island and outdoor dining zone shaded by a pergola, complemented by modern concrete pavers, gravel inlays, and decorative boulders for texture and contrast. Artificial turf and bluestone pathways create seamless transitions between spaces, while accent planters and retaining walls define the garden edges. A layered lighting plan highlights pathways, seating areas, and architectural elements.
CONCEPTUAL PLAN
This conceptual hardscape design showcases a contemporary outdoor living space centered around the existing pool and spa, with upgraded paving and integrated seating areas. The layout introduces a built-in BBQ island and outdoor dining zone shaded by a pergola, complemented by modern concrete pavers, gravel inlays, and decorative boulders for texture and contrast. Artificial turf and bluestone pathways create seamless transitions between spaces, while accent planters and retaining walls define the garden edges. A layered lighting plan highlights pathways, seating areas, and architectural elements.
BEFORE & AFTER

BEFORE & AFTER
















