, , ,,, , Skip to content

LUXURY LAGOON

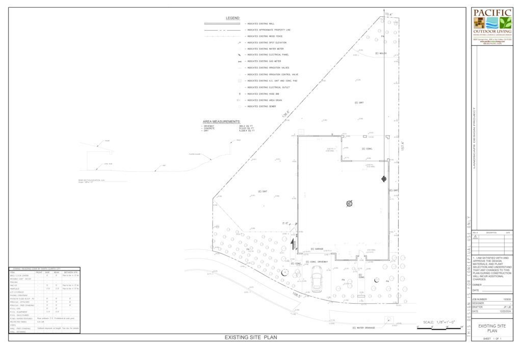
Existing site plan showing current backyard layout for landscape design project

BASE PLAN

This base plan outlines the main residence and garage situated on a large, irregularly shaped lot. The property includes existing concrete areas, including a driveway and entry paths, with the rest of the lot consisting primarily of dirt. Spot elevations, utility placements (electric panel, gas meter, hose bibs, and area drains), and property lines are clearly marked. The layout provides a clear starting point for design improvements, taking into account existing site conditions, slope, and available space for new landscape or structural features.

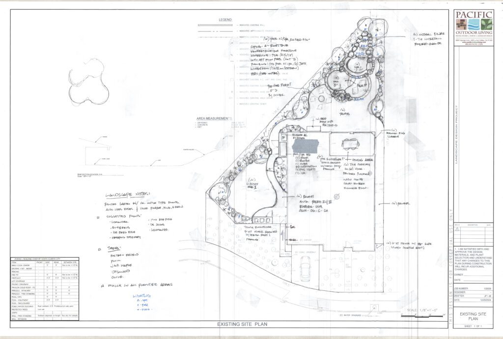
Hand-drawn landscape design sketch showing waterfall, pool, outdoor kitchen, seating area layout by Pacific Outdoor Living

DESIGN PROPOSALS

This sketch proposes a complete landscape transformation featuring a waterfall, a new pool and spa with a raised wall, jets, and a baja shelf. The design incorporates curved pathways, tiered planting areas, and natural boulder groupings to enhance the yard’s visual flow. Additional highlights include a proposed fire pit and BBQ area, creating a functional and inviting outdoor retreat.

Conceptual landscape design plan showing waterfall, pool, outdoor kitchen, seating area layout by Pacific Outdoor Living

CONCEPTUAL PLAN

This conceptual design plan includes a pool and spa with a baja shelf, raised wall, waterfall, and integrated lighting. The surrounding layout features natural boulders, curved paver patios, and layered plantings such as Japanese maples and drought-tolerant shrubs. Additional elements include a fire pit, BBQ island, artificial turf lawn, and custom lighting to enhance structure, privacy, and functionality.

BEFORE & AFTER

Completed backyard with waterfall, pool and outdoor kitchen in Southern California designed and built by Pacific Outdoor Living
Before After
Chat support avatar

Hi there, have a question? Text us here.

Chat support avatar

We want to help. Please submit your question?

We want to help make your outdoor dreams a reality. As the #1 Landscape Design Company in California, Pacific Outdoor Living has helped thousands of homeowners.

Enter your question below and someone will get back to you shortly.