, , ,,, , Skip to content

ZEN GARDEN

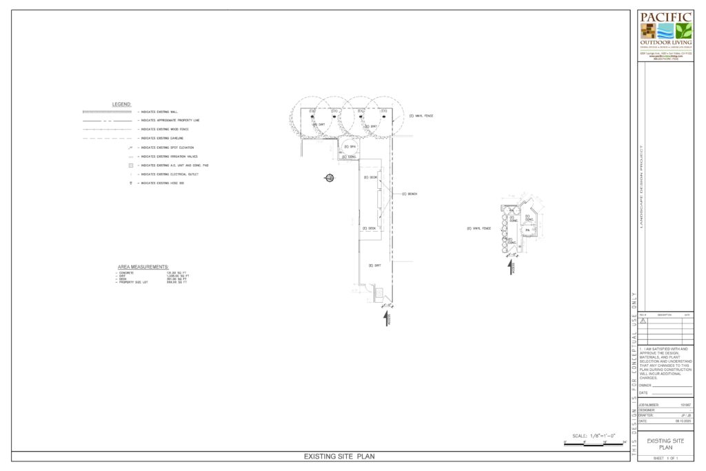
Existing site plan showing current backyard layout for landscape design project

BASE PLAN

This existing site plan documents the current layout and conditions of the property, illustrating the footprint of the main residence and associated outdoor structures, including the spa, decks, benches, and adjacent concrete pads.

The drawing identifies existing hardscape elements such as concrete walkways, patio areas, and deck surfaces, along with open dirt areas, planting zones, and tree locations that define circulation and usable outdoor space.

Property boundaries, fencing, and key site features are shown to establish scale and spatial relationships, while existing landscape elements and surface materials clarify how the yard is presently organized and accessed.

Overall, the plan provides a clear baseline of existing conditions to support future grading, landscape, and pool or spa design development.

Conceptual landscape design plan showing patio and firepit area layout by Pacific Outdoor Living

CONCEPTUAL PLAN

This conceptual landscape design transforms the long, narrow yard into a sequence of inviting garden spaces centered around a spa and intimate seating areas.

Curved flagstone paving and decomposed granite paths guide circulation, connecting a cedar arbor, stone-lined spa, and layered planting zones.

A custom boulder water feature, trellised fencing, and wood benches add structure, privacy, and visual interest, while lush ornamental grasses, shrubs, and vines soften the hardscape.

Together, these elements create a cohesive, tranquil garden retreat designed for relaxation and informal outdoor gathering.

SPEAK TO A DESIGNER

Chat support avatar

Hi there, have a question? Text us here.

Chat support avatar

We want to help. Please submit your question?

We want to help make your outdoor dreams a reality. As the #1 Landscape Design Company in California, Pacific Outdoor Living has helped thousands of homeowners.

Enter your question below and someone will get back to you shortly.