, , ,,, , Skip to content

WOODLAND ESCAPE

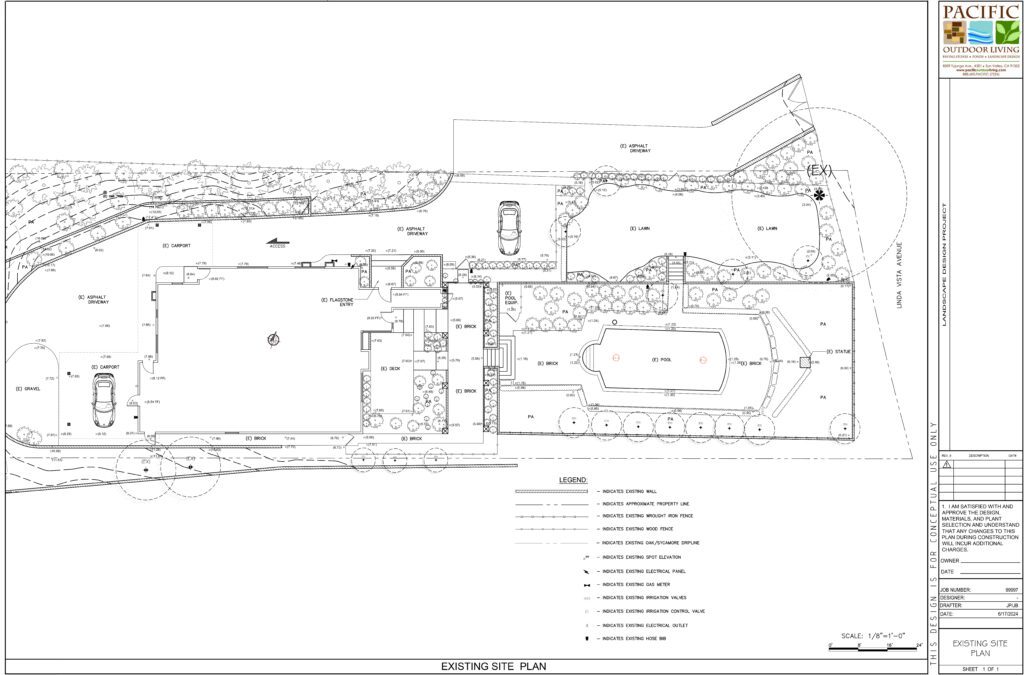
Existing site plan showing current backyard layout for landscape design project

BASE PLAN

The base plan mapped out the full layout of the property, including the full driveway, flagstone entry, fence lines, elevation changes, and existing planting areas. Because this was a driveway-focused project, it was especially important to identify key utility placements such as electrical panels, irrigation valves, and hose bibs. This foundational plan ensured the new design could work seamlessly around existing infrastructure and hardscape features.

Hand-drawn landscape design sketch showing driveway layout by Pacific Outdoor Living

DESIGN PROPOSALS

The sketch outlined the exact areas to be paved and helped confirm material choices. The homeowner and designer collaborated on selecting the pavers and agreed on using an ashlar pattern for the driveway and flagstone entry combining functionality with a refined look.

Conceptual paver design plan created by Pacific Outdoor Living

CONCEPTUAL PLAN

The conceptual plan showed the final layout using the selected pavers in the agreed ashlar pattern. Low-maintenance plantings were introduced, along with dark shredded mulch for the planter beds to keep the front yard neat and fresh. The design also included step lights at the front entry and outlined the placement and types of lighting throughout the property to enhance both safety and curb appeal.

BEFORE & AFTER

Wide residential paver driveway leading to a modern home with integrated step lighting, string lights, and lush surrounding greenery in a California outdoor living design.
Before After
Chat support avatar

Hi there, have a question? Text us here.

Chat support avatar

We want to help. Please submit your question?

We want to help make your outdoor dreams a reality. As the #1 Landscape Design Company in California, Pacific Outdoor Living has helped thousands of homeowners.

Enter your question below and someone will get back to you shortly.