, , ,,, , Skip to content

HIDDEN VALLEY

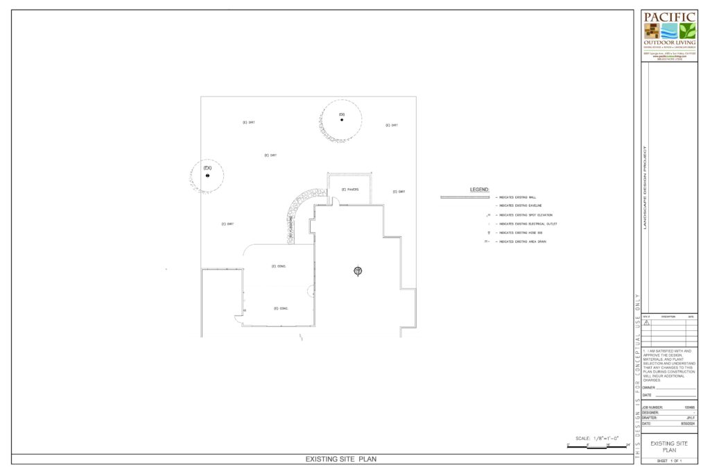
Existing site plan showing current backyard layout for landscape design project

BASE PLAN

This existing site plan illustrates the current layout and conditions of the property, showing the footprint of the main residence and adjacent structures, along with the surrounding yard areas. The drawing identifies existing concrete patios, paver sections, and curved walkway connections, as well as open dirt and planting zones that define circulation and outdoor use. Existing trees and landscape areas are shown to establish scale and spatial relationships, while hardscape elements such as the patio slab and small paved pad are documented to clarify how the outdoor spaces are presently organized and accessed. The plan provides a clear baseline of existing conditions for reference in future grading, landscape, and pool design development.

Conceptual landscape design plan showing outdoor kitchen and firepit area layout by Pacific Outdoor Living

CONCEPTUAL PLAN

This conceptual landscape design transforms the existing yard into a thoughtfully composed outdoor living space, anchored by a central gathering area and an integrated outdoor kitchen. The layout introduces a Fossil Creek flagstone patio and curved circulation paths that connect the kitchen, fire feature, and surrounding seating zones. The outdoor kitchen is shown with a stucco and stone veneer structure, complete with a grill, side burner, refrigerator, and sink, establishing a functional hub for cooking and entertaining. Decomposed granite and natural stone steppers define walkways, while steel edging and layered planting areas soften the transitions between hardscape and garden spaces. Together, the fire feature, kitchen, and lounge areas create a cohesive, resort-inspired environment designed for socializing, relaxation, and year-round outdoor living.

BEFORE & AFTER

Completed backyard transformation with outdoor kitchen and firepit area by Pacific Outdoor Living
Before After

SPEAK TO A DESIGNER

Chat support avatar

Hi there, have a question? Text us here.

Chat support avatar

We want to help. Please submit your question?

We want to help make your outdoor dreams a reality. As the #1 Landscape Design Company in California, Pacific Outdoor Living has helped thousands of homeowners.

Enter your question below and someone will get back to you shortly.